David Garcia
505.231.2789
$529,000

$529,000
505.231.2789
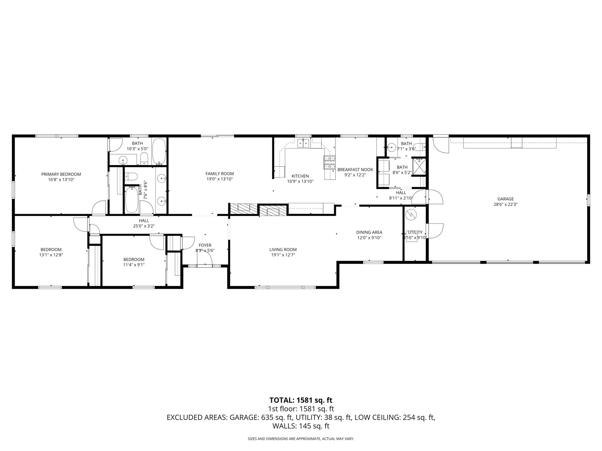
Astounding Sangre Views abound from this hilltop perch! This single level one owner home is sited on 5 acres and features 2 fireplaces, 3 bedrooms, spacious floorplan, separate laundry room with adjacent powder room, 3 garage bays and plenty of room to garden. There are mature apple trees and a fenced vegetable plot. The home offers a private well and natural gas. Ojo Springs and El Rancho de Los Golondrines are both just up the road and this country setting in the Village of La Cienega is less than 30 minutes to The Santa Fe Plaza!
Bernadette Parnell
Keller Williams Realty