David Garcia
505.231.2789
$2,900,000

$2,900,000
505.231.2789
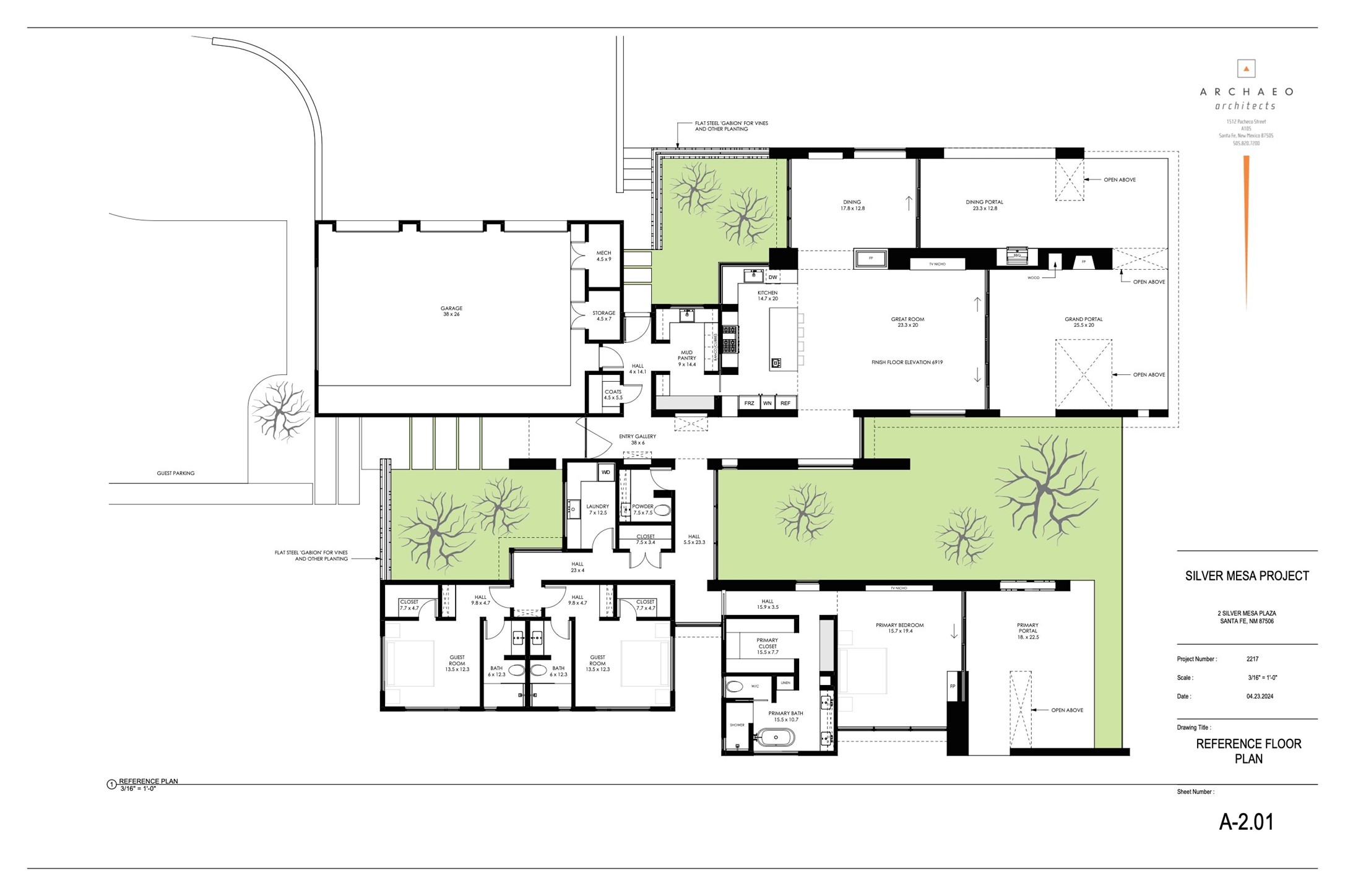
To-be-built by award-winning builder Zachary & Sons, this thoughtfully designed 3,770 sq. ft. single-level residence offers a rare opportunity to create a beautifully crafted home with an accelerated timeline. Upon execution of a contract, construction can begin within approximately 60 days, with an estimated 18-month build--an exceptional pace for a luxury home of this caliber.Sited on 1.5 elevated acres, the home is designed to capture sweeping views of the Sangre de Cristo Mountains from the main living areas and primary suite. The 3-bedroom, 3.5-bath floor plan offers a seamless flow between open living spaces and more intimate courtyards.Designed by AIA award-winning Archaeo Architects, the architecture blends contemporary lines with warm, natural materials. The living room features a dramatic wall of glass that opens to a grand portal with fireplace, creating a true indoor-outdoor living experience. The chef's kitchen is both functional and refined, complemented by a dining area that opens to a dedicated dining portal.Approximately 1,443 sq. ft. of covered outdoor living extends the home's connection to the surrounding landscape. The primary suite is positioned for privacy and mountain views, offering a quiet retreat.Exterior materials pair earthen stucco with crisp lines and black metal accents, while interiors feature warm wood and handcrafted finishes. Buyers benefit from a meaningful head start in the design process with the opportunity to personalize finishes.Located within walking distance to the Las Campanas clubhouse and fitness center, this offering combines thoughtful design, craftsmanship, and convenience in one of Santa Fe's most sought-after settings.
Stephanie Duran
Barker Realty, LLC